Redevelopment of The Salvation Army Day Activity Centre
Hong Kong
Address:
456 Shakeiwan Road, Shakeiwan
Client:
The Salvation Army
Status:
tender bid
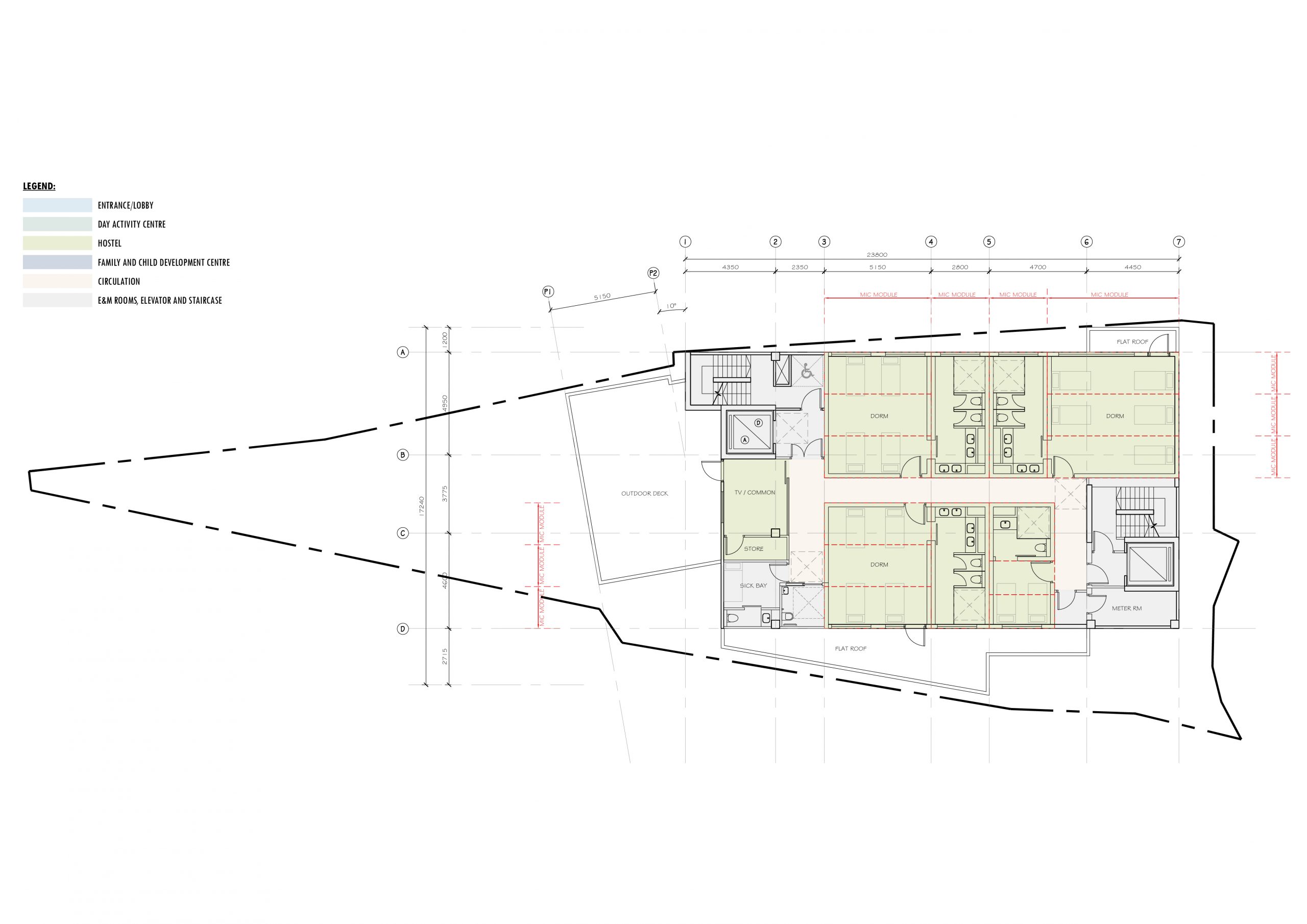
Scope:
day care rooms, dormitory, general office, restaurants and ancillary facilities, etc.
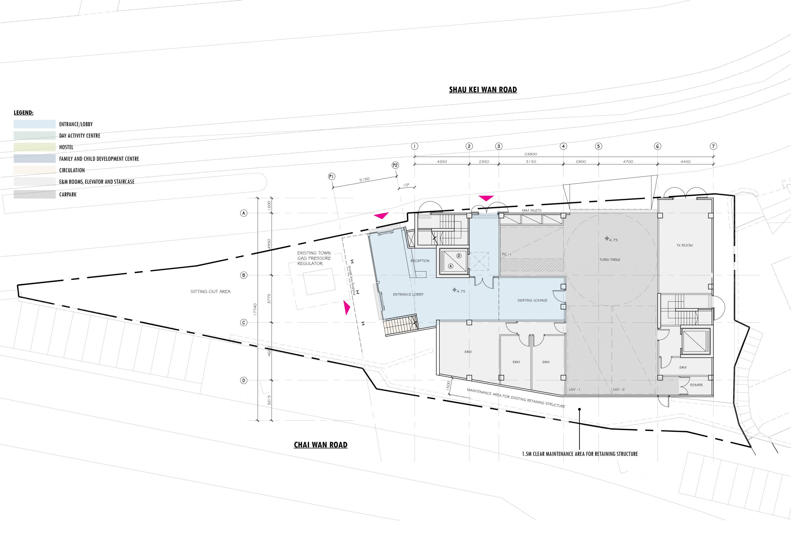
Located at No. 456 Shau Kei Wan Road in Shau Kei Wan, the ambitious project encompasses an area of
approximately 652sq.m, which includes the Existing Salvation Army site covering 280sq.m, an adjoining Sitting-
out Area of 187sq.m, and a Vacant Government Land area of 169sq.m. The total development area, excluding
the town gas pressure regulator and its maintenance area of 16 sq.m, amounts to 636sq.m. With a permitted
Plot Ratio of 5.54 and designated land use as GIC(1) under OZP regulations, the project is subject to an 11-
storey building height restriction (+4-.7mPD) to facilitate redevelopment. Additionally, compliance necessitates
the provision of an at-grade public open space of no less than 187sq.m. Accessible from Shau Kei Wan Road at
+4.7mPD and Chai Wan Road ranging from +12.6mPD to +14.1mPD, the site offers a strategic location for the
planned development.






