Jockey Club Choi Chee Ming Luen Kwong Scout Centre, Yuen Long
Hong Kong
Address:
1 Tai Tong Chuen, Tai Tong Road, Yuen Long
Client:
Scout Association of Hong Kong
Completion:
2028
Scope:
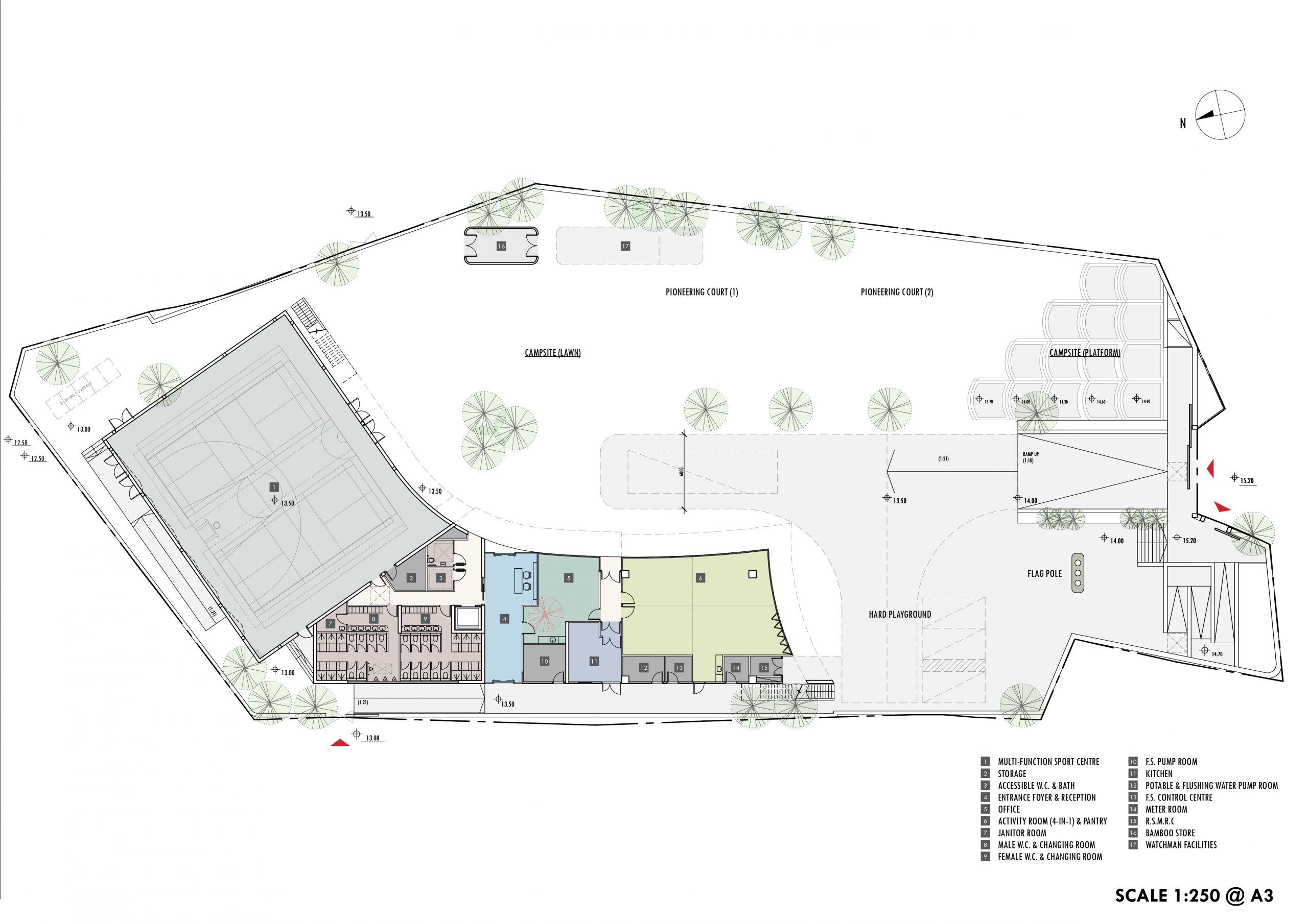
sports hall, training rooms, camping area, changing/shower ancillary facilities, etc.
Situated at No. 1 Tai Tong Chuen, Tai Tong Road in Yuen Long, the ambitious project spans approximately 3,340 sq.m, transforming the former Luen Kwong Public School into the Choi Chee Ming Luen Kwong Scout Centre. Designed to accommodate 200 campers for day camp services, the venture involves the meticulous demolition of existing structures to pave the way for a new Sports Center covering around 390 square meters. This state-of-the-art facility will house a versatile sport court, a challenging climbing wall, high rope facilities, and innovative elements such as solar panels, a VRV system, and strategically positioned fire water tanks on the rooftop. Serving a dual purpose, the center will also function as a crucial emergency shelter during adverse weather conditions.






